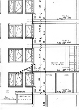
gebäudeschnitt bürokomplex
1/4